
Gas Detection
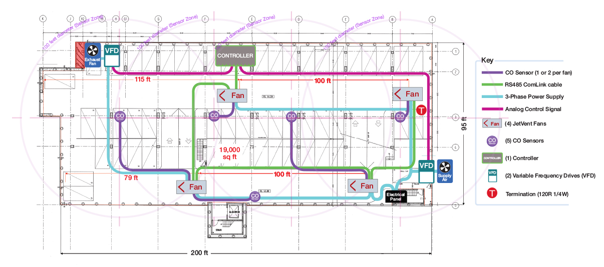
In parking structures, Carbon Monoxide (CO) and Nitrogen Dioxide (NO2) are two of the most abundant airborne contaminants and poses significant safety concerns. The CO and NO2 levels must be controlled or ventilated when concentrations approach unsafe levels. Various gas monitors are available for use in parking structure applications. The specifics of the design determine what type of monitor or monitoring system best suits the application. Gas detection from standalone units to fully engineered, multi-point systems, all offering cost-effective regulatory compliance. Applications: parking structures, chillers, mechanical rooms, office towers, commercial buildings, shopping centers, swimming pools, golf courses, schools and universities, laboratories.
